0
Sous-offre
Exclusif

Maison 3 chambres – Proche gare – Fontenay-sur-Loing

Fontenay-sur-Loing (45210)
Réf : FMVMA130001613

À 5 minutes en voiture de la gare de Ferrières–Fontenay et à moins de 10 minutes des axes A77 et A19, cette maison de 92 m², à remettre au goût du jour, offre un cadre calme et agréable.

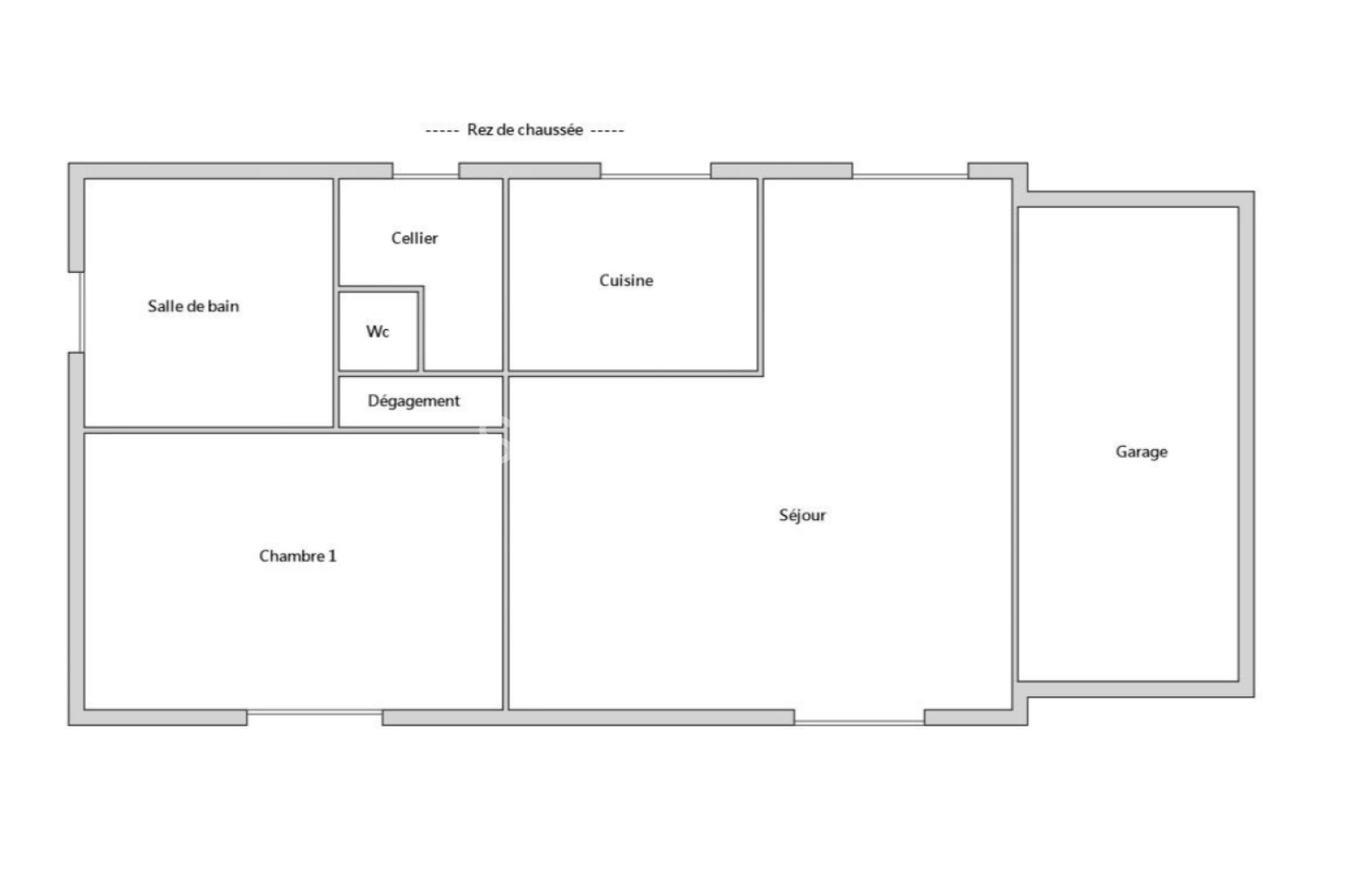
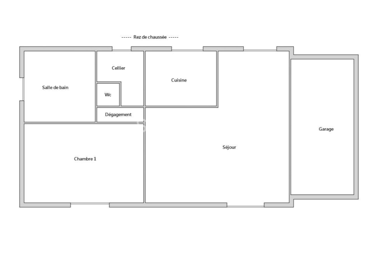
Le rez-de-chaussée permet une vie de plain-pied avec un salon/séjour avec cheminée, une cuisine séparée, une chambre, une salle de bain et un WC indépendant.

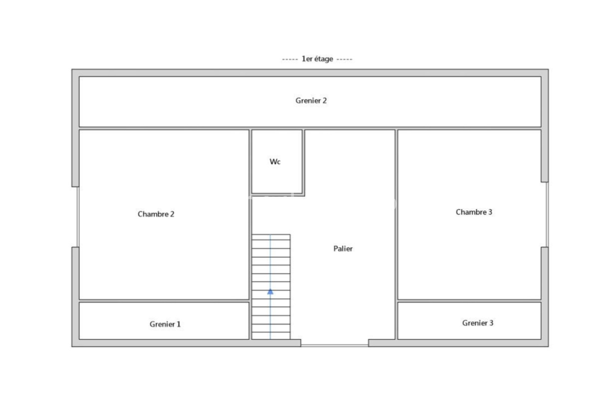
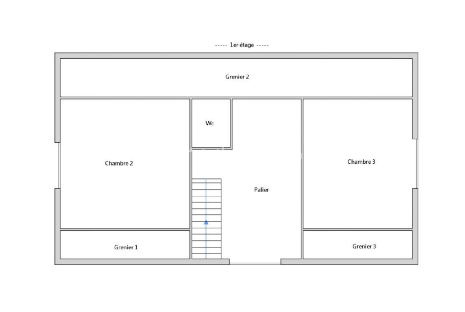
À l’étage, un palier dessert deux chambres, chacune disposant d'un espace de rangement attenant, aini qu' un second WC.

Un garage attenant, une serre et un local extérieur type cave complètent l’ensemble.Le terrain de 2 589 m², en partie boisé et en pente, offre un bel espace extérieur et un cadre naturel.

Chauffage au gaz naturel– Chaudière neuve de juin 2025

Menuiseries PVC double vitrage

Tout-à-l'égout

Une maison pleine de potentiel, à réinventer selon vos envies !

Annonce proposée par un agent commercial

Prix du bien 115 000 €
Pièce(s) 4
Chambre(s) 3

Caractéristiques du bien

Caractéristiques Valeurs
Code postal 45210
Surface habitable (m²) 92 m²
surface terrain 2 589 m²
Nombre de chambre(s) 3
Nombre de pièces 4
Nombre de niveaux 1
Nb de salle de bains 1
Nombre de garage 1
Exposition Est-Ouest
Année de construction 1968

Infos financières

Caractéristiques Valeurs
Prix de vente honoraires TTC inclus 115 000 €

Bilans énergétiques

DPE GES
Ce bien vous est proposé par
Ce bien vous intéresse ?
Fieldset par défaut
Fieldset par défaut
Validation

* Champs obligatoires

Contacter l'agence
Validation
Les informations recueillies sur ce formulaire sont enregistrées dans un fichier informatisé par La Boite Immo agissant comme Sous-traitant du traitement pour la gestion de la clientèle/prospects de l'Agence / du Réseau qui reste Responsable du Traitement de vos Données personnelles. La base légale du traitement repose sur l'intérêt légitime de l'Agence / du Réseau. Elles sont conservées jusqu'à demande de suppression et sont destinées à l'Agence / au Réseau. Conformément à la loi « informatique et libertés », vous disposez des droits d’accès, de rectification, d’effacement, d’opposition, de limitation et de portabilité de vos données. Vous pouvez retirer votre consentement à tout moment en contactant directement l’Agence / Le Réseau. Consultez le site https://cnil.fr/fr pour plus d’informations sur vos droits. Si vous estimez, après avoir contacté l'Agence / le Réseau, que vos droits « Informatique et Libertés » ne sont pas respectés, vous pouvez adresser une réclamation à la CNIL. Nous vous informons de l’existence de la liste d'opposition au démarchage téléphonique « Bloctel », sur laquelle vous pouvez vous inscrire ici : https://www.bloctel.gouv.fr Dans le cadre de la protection des Données personnelles, nous vous invitons à ne pas inscrire de Données sensibles dans le champ de saisie libre.
Ce site est protégé par reCAPTCHA, les Politiques de Confidentialité et les Conditions d'Utilisation de Google s'appliquent.

Localisationdu bien

  • Commerces et santé
  • Loisirs
  • Ecoles
  • Transports
  • Pratique
Ces biens peuvent vous intéresser