0

Maison récente 2024 – Villa T4 de 95 m² Terrain clos 235 m² - Jardin – Terrasse – Garage

Bollène (84500)
Réf : 251124OK - GCVMA580001399

Dans un quartier calme en développement, cette maison neuve sur 2 niveaux exposée sud offre un cadre de vie agréable dans le joli lotissement "Le clos de St Ferréol".

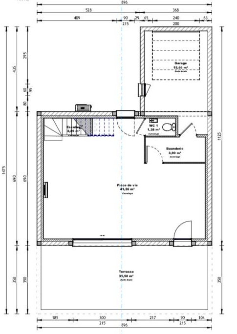
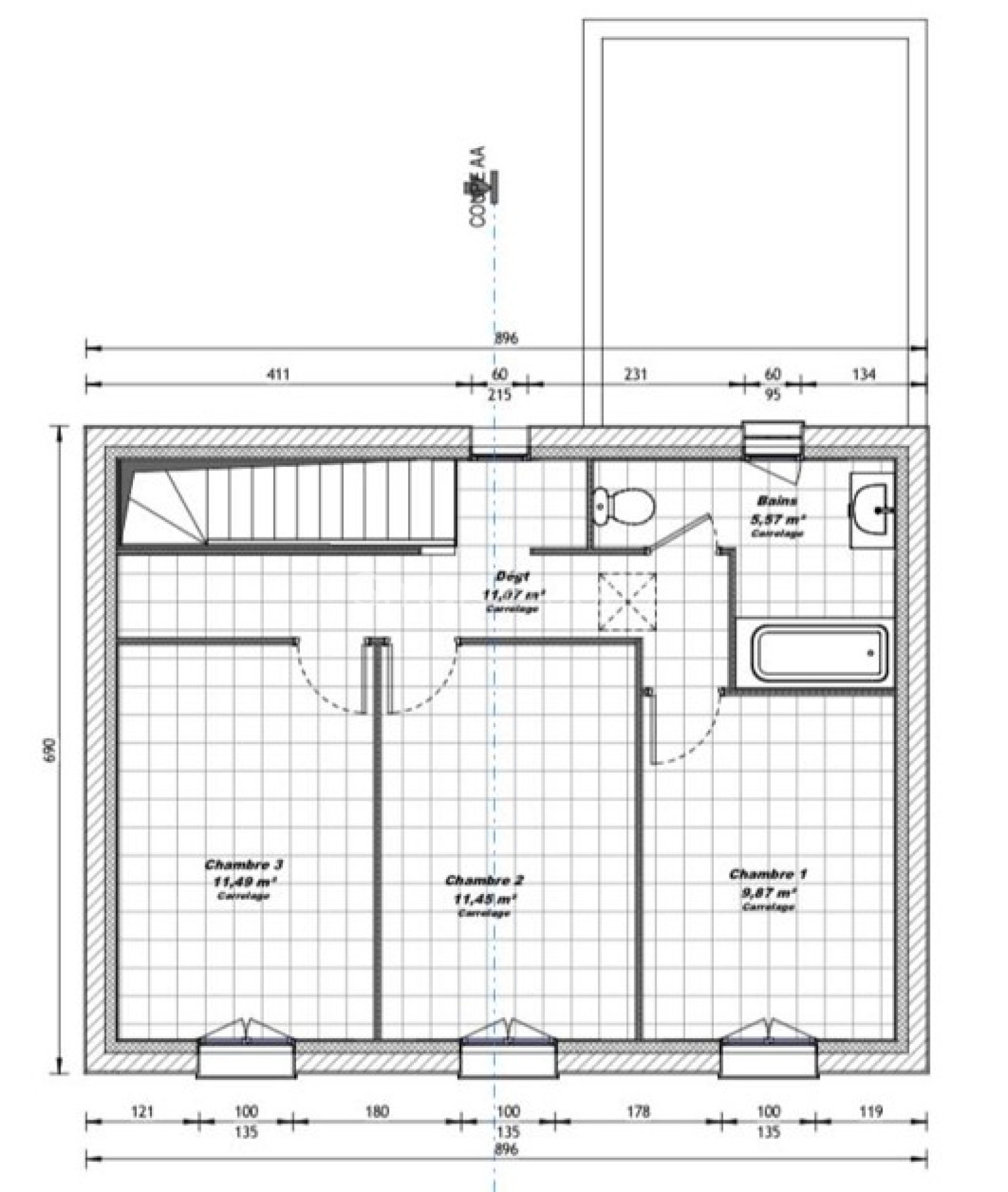
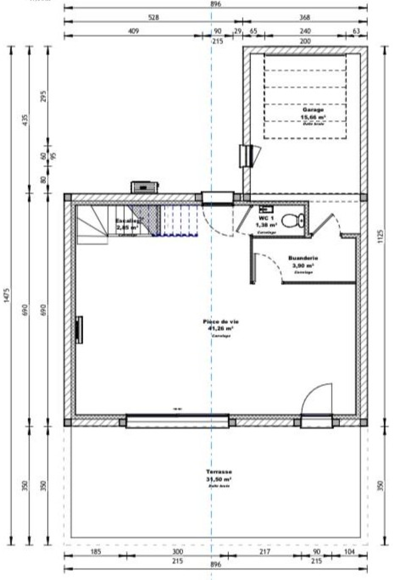
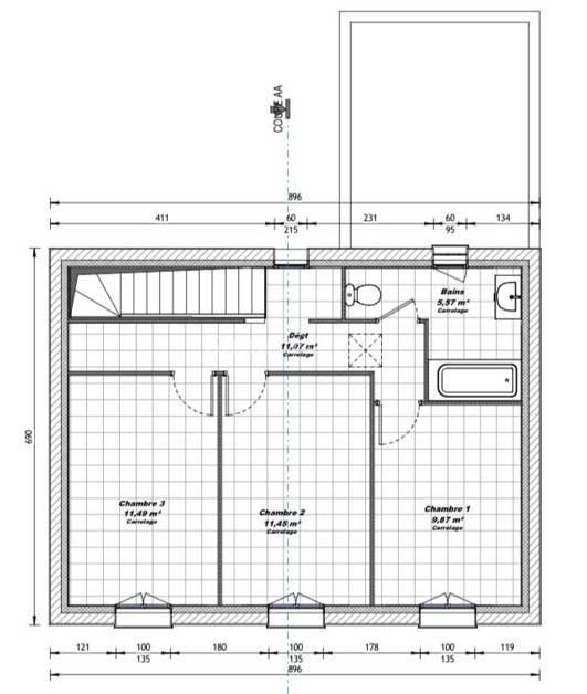
Le rez-de-chaussée est composé d'une pièce à vivre de 41 m² lumineuse et fonctionnelle, la cuisine équipée s'intègre parfaitement dans cet espace de vie donnant sur une grande terrasse de 31 m² ; la buanderie/cellier, le wc indépendant et le garage (16 m²) complètent ce niveau. L'étage abrite la partie nuit, un dégagement de 11 m² dessert trois chambres de 10 à 12 m² avec placard, une salle de bain avec toilette.

Cette maison en RT 2012 est dotée de prestations de qualité, climatiseurs réversibles, radiateurs à inertie, carrelage sur toute la surface, porte d'entrée acier, volets électriques avec commande individuelle sur toutes les ouvertures ; garage porte télécommandée.

Belle opportunité d'acquérir une maison neuve...

Annonce proposée par un agent commercial


Les informations sur les risques auxquels ce bien est exposé sont disponibles sur le site Géorisques
Prix du bien 245 000 €
Pièce(s) 5
Chambre(s) 3

Caractéristiques du bien

Caractéristiques Valeurs
Code postal 84500
Surface habitable (m²) 96 m²
surface terrain 235 m²
Surface loi Carrez (m²) 96 m²
Nombre de chambre(s) 3
Nombre de pièces 5
Nombre de niveaux 2
Nb de salle de bains 1
Cuisine Américaine
Type de cuisine Equipée
Mode de chauffage Pompe à chaleur
Type de chauffage Autre
Format de chauffage Individuel
Interphone OUI
Visiophone NON
Terrasse OUI
Nombre de garage 1
Nombre de parking 3
Exposition Sud
Année de construction 2023
Terrain piscinable OUI
Terrain arboré OUI

Infos financières

Caractéristiques Valeurs
Prix de vente 245 000 €
Les honoraires d'agence seront intégralement à la charge du vendeur  

Bilans énergétiques

DPE GES
Ce bien vous est proposé par
Ce bien vous intéresse ?
Fieldset par défaut
Fieldset par défaut
Validation

* Champs obligatoires

Contacter l'agence
Validation
Les informations recueillies sur ce formulaire sont enregistrées dans un fichier informatisé par La Boite Immo agissant comme Sous-traitant du traitement pour la gestion de la clientèle/prospects de l'Agence / du Réseau qui reste Responsable du Traitement de vos Données personnelles. La base légale du traitement repose sur l'intérêt légitime de l'Agence / du Réseau. Elles sont conservées jusqu'à demande de suppression et sont destinées à l'Agence / au Réseau. Conformément à la loi « informatique et libertés », vous disposez des droits d’accès, de rectification, d’effacement, d’opposition, de limitation et de portabilité de vos données. Vous pouvez retirer votre consentement à tout moment en contactant directement l’Agence / Le Réseau. Consultez le site https://cnil.fr/fr pour plus d’informations sur vos droits. Si vous estimez, après avoir contacté l'Agence / le Réseau, que vos droits « Informatique et Libertés » ne sont pas respectés, vous pouvez adresser une réclamation à la CNIL. Nous vous informons de l’existence de la liste d'opposition au démarchage téléphonique « Bloctel », sur laquelle vous pouvez vous inscrire ici : https://www.bloctel.gouv.fr Dans le cadre de la protection des Données personnelles, nous vous invitons à ne pas inscrire de Données sensibles dans le champ de saisie libre.
Ce site est protégé par reCAPTCHA, les Politiques de Confidentialité et les Conditions d'Utilisation de Google s'appliquent.

Localisationdu bien

  • Commerces et santé
  • Loisirs
  • Ecoles
  • Transports
  • Pratique