0

LA BÂTIE-ROLLAND – 26160 (Drôme) France Villa T6 - 146 m² – 4 chambres - Terrain clos 1100 m² - Piscine - Gar

La Bâtie-Rolland (26160)
Réf : GCVMA580001672

Située dans un quartier paisible à 12 kms de Montélimar et à quelques pas du centre du village, proche des commerces et ses commodités, cette magnifique propriété de 146 m² habitable vous séduira pour son emplacement privilégié et son espace de vie très confortable.

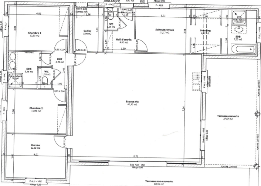
Particulièrement accueillante et moderne, maison contemporaine récente (2021) de plain-pied sur toute sa surface, le hall d'entrée s'ouvre sur une pièce de vie de 64 m² intégrant une cuisine semi-fermée de 12 m² lumineuse et très bien équipée, bordée de deux terrasses, l'une au sud de 80 m², l'autre à l'est est entièrement couverte de 28 m². Une chambre, une suite parentale avec dressing et salle de bain, deux chambres de 12 m² et une seconde salle de bain, un vestiaire, un wc indépendant, un cellier-buanderie complètent ce niveau.

Un garage de 31 m² + mezzanine 13 m² prolongé par un abri couvert semi-fermé de 26 m² et une piscine de 36 m², local technique 9 m², constituent les dépendances. La propriété bénéficie d'une installation de panneaux solaires 3KW.

Prestation haut de gamme : carrelage sur toute la surface de la maison, climatiseurs réversibles dans toutes les pièces, menuiseries intérieures en isoplane et extérieures en aluminium, volets roulants sur toutes les ouvertures, commande individuelle et centralisée.

Cette villa récente conjugue cachet et volume généreux au coeur d'un environnement préservé et végétalisé. Elle offre une qualité de vie paisible dans un espace de vie très agréable et ensoleillé ; calme, confortable et accessible, elle bénéficie d'un emplacement recherché, proche des différentes activités urbaines de la région, accès rapide à l'entrée de l'autoroute A7 (sud ou nord) au centre du pôle économique de l'axe rhodanien (Lyon/Marseille) et du périmètre des activités nucléaires de la région.

Annonce proposée par un agent commercial


Les informations sur les risques auxquels ce bien est exposé sont disponibles sur le site Géorisques
Prix du bien 476 000 €
Pièce(s) 5
Chambre(s) 4

Caractéristiques du bien

Caractéristiques Valeurs
Code postal 26160
Surface habitable (m²) 146 m²
surface terrain 1 100 m²
Nombre de chambre(s) 4
Nombre de pièces 5
Vue Dégagée
Nb de salle de bains 1
Nb de salle d'eau 1
Cuisine Séparée
Type de cuisine Equipée
Mode de chauffage Climatisation
Type de chauffage Cheminée
Format de chauffage Individuel
Interphone OUI
Visiophone NON
Terrasse OUI
Nombre de garage 1
Nombre de parking 3
Exposition Sud
Année de construction 2020
Terrain piscinable OUI
Terrain arboré OUI

Infos financières

Caractéristiques Valeurs
Prix de vente 476 000 €
Les honoraires d'agence seront intégralement à la charge du vendeur  
Taxe foncière annuelle 1 700 €

Bilans énergétiques

DPE GES
Ce bien vous est proposé par
Ce bien vous intéresse ?
Fieldset par défaut
Fieldset par défaut
Validation

* Champs obligatoires

Contacter l'agence
Validation
Les informations recueillies sur ce formulaire sont enregistrées dans un fichier informatisé par La Boite Immo agissant comme Sous-traitant du traitement pour la gestion de la clientèle/prospects de l'Agence / du Réseau qui reste Responsable du Traitement de vos Données personnelles. La base légale du traitement repose sur l'intérêt légitime de l'Agence / du Réseau. Elles sont conservées jusqu'à demande de suppression et sont destinées à l'Agence / au Réseau. Conformément à la loi « informatique et libertés », vous disposez des droits d’accès, de rectification, d’effacement, d’opposition, de limitation et de portabilité de vos données. Vous pouvez retirer votre consentement à tout moment en contactant directement l’Agence / Le Réseau. Consultez le site https://cnil.fr/fr pour plus d’informations sur vos droits. Si vous estimez, après avoir contacté l'Agence / le Réseau, que vos droits « Informatique et Libertés » ne sont pas respectés, vous pouvez adresser une réclamation à la CNIL. Nous vous informons de l’existence de la liste d'opposition au démarchage téléphonique « Bloctel », sur laquelle vous pouvez vous inscrire ici : https://www.bloctel.gouv.fr Dans le cadre de la protection des Données personnelles, nous vous invitons à ne pas inscrire de Données sensibles dans le champ de saisie libre.
Ce site est protégé par reCAPTCHA, les Politiques de Confidentialité et les Conditions d'Utilisation de Google s'appliquent.

Localisationdu bien

  • Commerces et santé
  • Loisirs
  • Ecoles
  • Transports
  • Pratique