0

CASTELLAR VILLAGE - Maison de village 5P TRIPLEX traversant - 114m2 carrez EXPO OUEST

Castellar (06500)
Réf : RAVTR750001420

! IDÉAL FAMILLE / PRIMO ACCÉDENT !

Et si vous deveniez propriétaire en plein COEUR DE CASTELLAR à deux pas de MENTON, à la connexion FACILE à MONACO par autoroute ?

Votre agence vous offre l'OPPORTUNITÉ d'acquérir, pour un PRIX TRÈS ATTRACTIF, un 5 PIÈCES en TRIPLEX SANS CHARGES avec le charme de la MAISON DE VILLAGE.

Un village HISTORIQUE niché sur son piton rocheux DOMINANT MENTON et la baie de Garavan, offrant un POINT DE VUE IMPRENABLE, un CALME et un CHARME RÉPUTÉ.

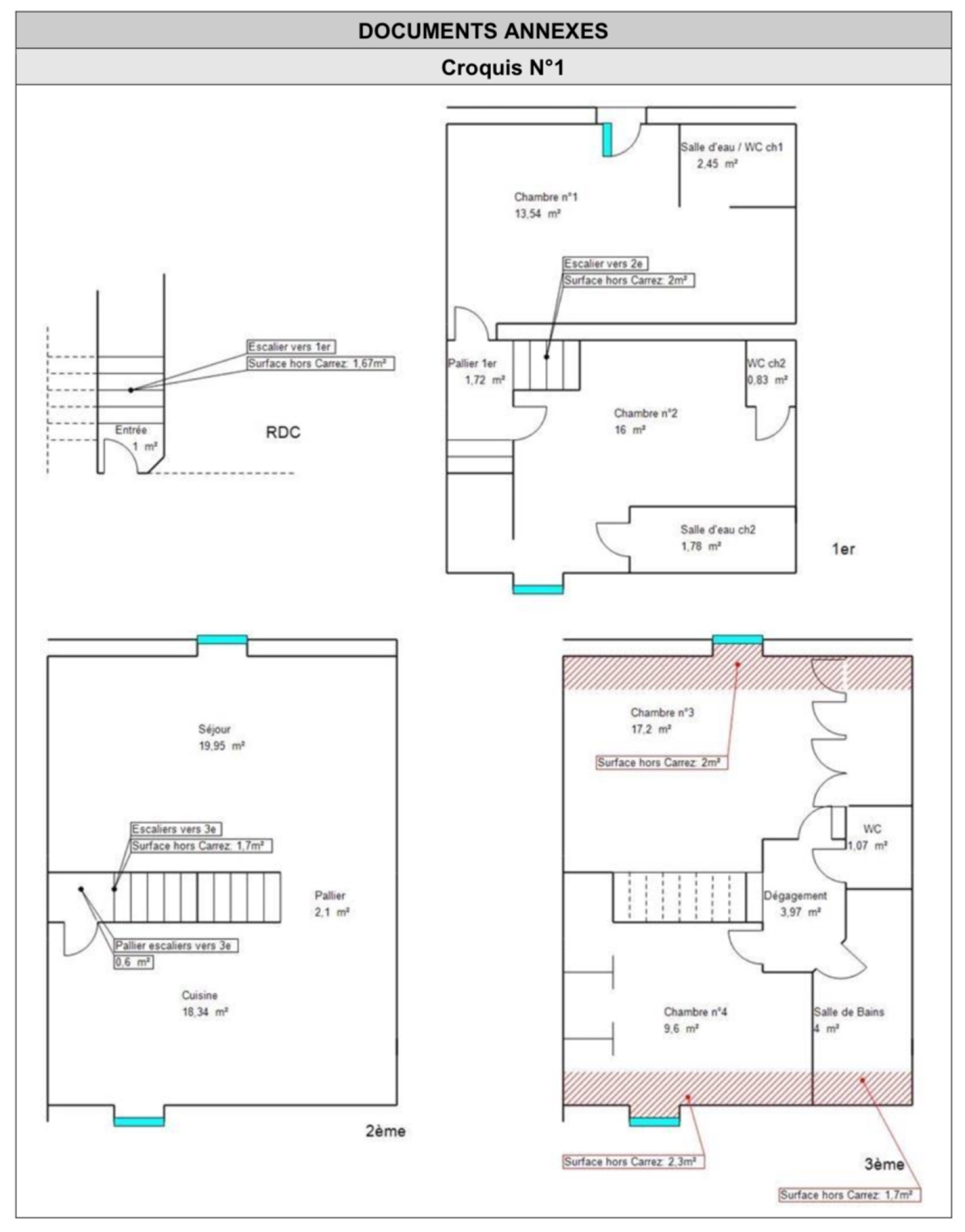
Cette propriété allie CHARME DANTAN et confort contemporain, le tout répartie sur 3 niveaux comme suit :


• Au 1er étage : 2 chambres accompagnées chacune de leur salle d’eau et wc (chambre parentale avec balconnet)

• Au 2ième : Une cuisine équipée et fonctionnelle ouverte sur salle à manger / un charmant salon doté d'un POÊLE À BOIS FONCTIONNEL

• Au 3ième : 2 chambres supplémentaires, un WC indépendant et une grande salle de bain familiale

Un AGENCEMENT IDÉAL pour une vie de famille harmonieuse ou pour recevoir en toute convivialité, dans un cadre mêlant AUTHENTICITÉ ET MODERNITÉ.


CERISE sur le GÂTEAUX : Vue PANORAMIQUE sur les COLLINES et les toits du village.


UNE CAVE d'environ 30m2 peut-être vendue EN SUPPLÉMENT du prix.

Annonce proposée par un agent commercial

Prix du bien 360 000 €
Pièce(s) 5
Chambre(s) 4

Caractéristiques du bien

Caractéristiques Valeurs
Code postal 06500
Surface habitable (m²) 114,15 m²
Surface loi Carrez (m²) 114,15 m²
Nombre de chambre(s) 4
Nombre de pièces 5
Nombre de niveaux 3
Ascenseur NON
Vue Dégagée Colline
Nb de salle de bains 1
Nb de salle d'eau 2
Cuisine Américaine
Mode de chauffage Bois
Type de chauffage Poêle
Format de chauffage Individuel
Balcon NON
Terrasse NON
Exposition Est-Ouest
Année de construction 1800

Infos financières

Caractéristiques Valeurs
Prix de vente 360 000 €
Les honoraires d'agence seront intégralement à la charge du vendeur  
Taxe foncière annuelle 74 €

Bilans énergétiques

DPE GES
Ce bien vous est proposé par
Ce bien vous intéresse ?
Fieldset par défaut
Fieldset par défaut
Validation

* Champs obligatoires

Contacter l'agence
Validation
Les informations recueillies sur ce formulaire sont enregistrées dans un fichier informatisé par La Boite Immo agissant comme Sous-traitant du traitement pour la gestion de la clientèle/prospects de l'Agence / du Réseau qui reste Responsable du Traitement de vos Données personnelles. La base légale du traitement repose sur l'intérêt légitime de l'Agence / du Réseau. Elles sont conservées jusqu'à demande de suppression et sont destinées à l'Agence / au Réseau. Conformément à la loi « informatique et libertés », vous disposez des droits d’accès, de rectification, d’effacement, d’opposition, de limitation et de portabilité de vos données. Vous pouvez retirer votre consentement à tout moment en contactant directement l’Agence / Le Réseau. Consultez le site https://cnil.fr/fr pour plus d’informations sur vos droits. Si vous estimez, après avoir contacté l'Agence / le Réseau, que vos droits « Informatique et Libertés » ne sont pas respectés, vous pouvez adresser une réclamation à la CNIL. Nous vous informons de l’existence de la liste d'opposition au démarchage téléphonique « Bloctel », sur laquelle vous pouvez vous inscrire ici : https://www.bloctel.gouv.fr Dans le cadre de la protection des Données personnelles, nous vous invitons à ne pas inscrire de Données sensibles dans le champ de saisie libre.
Ce site est protégé par reCAPTCHA, les Politiques de Confidentialité et les Conditions d'Utilisation de Google s'appliquent.

Localisationdu bien

  • Commerces et santé
  • Loisirs
  • Ecoles
  • Transports
  • Pratique