0

OPPORTUNITÉ RARE : Charmante longère à Pannes (45), 7 pièces 251 m² 1874 m²

Pannes (45700)
Réf : SRVMA570000709

À seulement 1h30 de Paris Sud via l'A6, située sur la commune de Pannes, charmante bourgade offrant commerces de proximité (bar, boulangerie, fleuriste...), venez découvrir cette belle longère de 251 m² habitables.

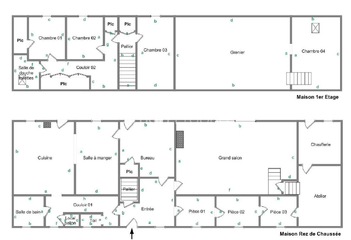
Rez-de-chaussée :

  • Spacieuse entrée
  • Couloir desservant W.C et salle de bains avec douche
  • Cuisine aménagée ouverte sur une vaste salle à manger de 50,3 m²
  • Grand séjour avec cheminée de 58 m²
  • 2 chambres confortables (20,5 m² et 18,75 m²)
  • Cellier, chaufferie, atelier et garage

Étage :

  • 3 chambres (16,86 m², 11,17 m² et 12 m²)
  • Salle d'eau avec W.C (5,13 m²)

À l’extérieur, vous profiterez d'un jardin de 1 341 m² avec une piscine (liner à remplacer- machinerie à faire vérifier). Dépendances à usage de garage et local chaufferie (38,7 m²).

Prestations :

  • Chauffage central au fuel, cuve en plastique sanitaire - Possibilité de passer à une PAC.
  • Fenêtres en double vitrage PVC/bois avec volets roulants électriques et battants bois
  • Tout à l'égout
Des travaux de remise aux normes électriques seront à prévoir, ainsi qu'un raffraîchissement général.

Une opportunité rare pour les amoureux de la campagne à proximité de Paris, dans un cadre paisible et verdoyant !

Prix : 198 000€ (frais d'agence inclus, à la charge du vendeur)

Diagnostic de Performance Énergétique (DPE) : Classe F (279 kWh/m²/an)
Émission de Gaz à Effet de Serre (GES) : Classe F (74 kg CO₂/m²/an)

Montant estimé des dépenses annuelles d'énergie de ce logement pour un usage standard est compris entre 5070 € et 6910 € . 2021 étant l'année de référence des prix de l'énergie utilisés pour établir cette estimation.

Taxe Foncière : 1828€

Les informations sur les risques auxquels ce bien est exposé sont disponibles sur le site Géorisques

Contactez votre conseiller
06.09.39.52.71

Expert Immobilier Agréé
Agent commercial immatriculé sous le numéro 537898025 RSAC de RENNES

Annonce proposée par un agent commercial


Les informations sur les risques auxquels ce bien est exposé sont disponibles sur le site Géorisques
Prix du bien 198 000 €
Pièce(s) 7
Chambre(s) 5

Caractéristiques du bien

Caractéristiques Valeurs
Code postal 45700
Surface habitable (m²) 251 m²
Surface loi Carrez (m²) 251 m²
Nombre de chambre(s) 5
Nombre de pièces 7
Nombre de niveaux 2
Vue jardin
Nb de salle de bains 1
Nb de salle d'eau 1
Cuisine Séparée
Type de cuisine Equipée
Mode de chauffage Fioul
Type de chauffage Chaudière
Format de chauffage Individuel
Terrasse OUI
Nombre de garage 1
Exposition Sud
Année de construction 1900
Terrain arboré OUI

Infos financières

Caractéristiques Valeurs
Prix de vente 198 000 €
Les honoraires d'agence seront intégralement à la charge du vendeur  

Bilans énergétiques

DPE GES
Ce bien vous est proposé par
Ce bien vous intéresse ?
Fieldset par défaut
Fieldset par défaut
Validation

* Champs obligatoires

Contacter l'agence
Validation
Les informations recueillies sur ce formulaire sont enregistrées dans un fichier informatisé par La Boite Immo agissant comme Sous-traitant du traitement pour la gestion de la clientèle/prospects de l'Agence / du Réseau qui reste Responsable du Traitement de vos Données personnelles. La base légale du traitement repose sur l'intérêt légitime de l'Agence / du Réseau. Elles sont conservées jusqu'à demande de suppression et sont destinées à l'Agence / au Réseau. Conformément à la loi « informatique et libertés », vous disposez des droits d’accès, de rectification, d’effacement, d’opposition, de limitation et de portabilité de vos données. Vous pouvez retirer votre consentement à tout moment en contactant directement l’Agence / Le Réseau. Consultez le site https://cnil.fr/fr pour plus d’informations sur vos droits. Si vous estimez, après avoir contacté l'Agence / le Réseau, que vos droits « Informatique et Libertés » ne sont pas respectés, vous pouvez adresser une réclamation à la CNIL. Nous vous informons de l’existence de la liste d'opposition au démarchage téléphonique « Bloctel », sur laquelle vous pouvez vous inscrire ici : https://www.bloctel.gouv.fr Dans le cadre de la protection des Données personnelles, nous vous invitons à ne pas inscrire de Données sensibles dans le champ de saisie libre.
Ce site est protégé par reCAPTCHA, les Politiques de Confidentialité et les Conditions d'Utilisation de Google s'appliquent.

Localisationdu bien

  • Commerces et santé
  • Loisirs
  • Ecoles
  • Transports
  • Pratique