0

MONTELIMAR - 26200 (Drôme) France Maison 1995 – T5 150 m² – Terrain clos 450 m² - Vérandas – Loggia – Terrass

Montélimar (26200)
Réf : GCVMA580000475

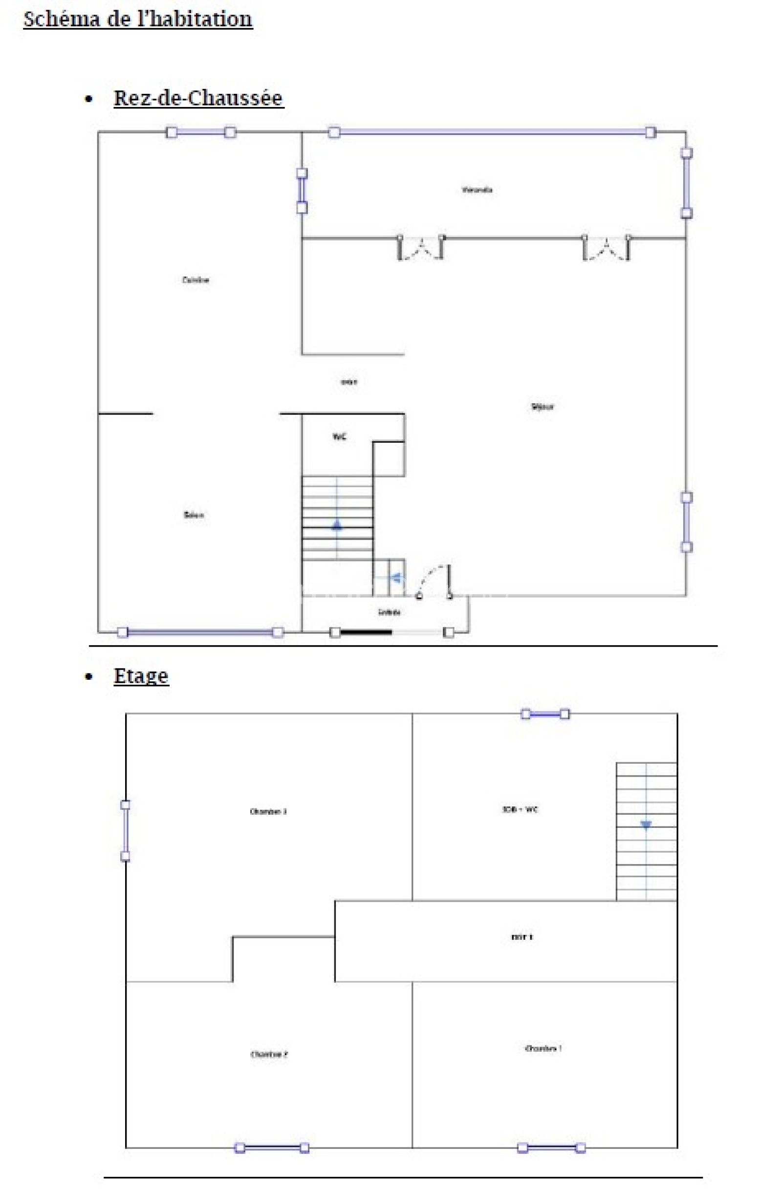
Maison de 1195, sur deux niveaux de 150 m², très proche du centre-ville (quelques minutes à pied).  Edifiée sur une parcelle de 452 m² entièrement close ; au sud, loggia de 18 m², prolongée par une terrasse de 35m² ; au nord une terrasse de 30 m² et une véranda de 3 m² abritant l'entrée de la maison. Dépendance 16 m². L'entrée débouche sur une grande de vie de 50 m², une cuisine séparée et un bureau/salon TV. A l'étage, 3 grandes chambres et une salle de bain . Propriété en très bon état.

Annonce proposée par un agent commercial


Les informations sur les risques auxquels ce bien est exposé sont disponibles sur le site Géorisques
Prix du bien 329 000 €
Pièce(s) 6
Chambre(s) 3

Caractéristiques du bien

Caractéristiques Valeurs
Code postal 26200
Surface habitable (m²) 150 m²
surface terrain 452 m²
Surface loi Carrez (m²) 149 m²
Nombre de chambre(s) 3
Nombre de pièces 6
Nombre de niveaux 2
Nb de salle de bains 1
Cuisine Séparée
Type de cuisine Equipée
Mode de chauffage Electrique
Type de chauffage Radiateur
Format de chauffage Individuel
Interphone OUI
Visiophone NON
Terrasse OUI
Nombre de parking 3
Exposition Sud
Année de construction 1995
Terrain piscinable OUI
Terrain arboré OUI

Infos financières

Caractéristiques Valeurs
Prix de vente 329 000 €
Les honoraires d'agence seront intégralement à la charge du vendeur  
Taxe foncière annuelle 1 750 €

Bilans énergétiques

DPE GES
Ce bien vous est proposé par
Ce bien vous intéresse ?
Fieldset par défaut
Fieldset par défaut
Validation

* Champs obligatoires

Contacter l'agence
Validation
Les informations recueillies sur ce formulaire sont enregistrées dans un fichier informatisé par La Boite Immo agissant comme Sous-traitant du traitement pour la gestion de la clientèle/prospects de l'Agence / du Réseau qui reste Responsable du Traitement de vos Données personnelles. La base légale du traitement repose sur l'intérêt légitime de l'Agence / du Réseau. Elles sont conservées jusqu'à demande de suppression et sont destinées à l'Agence / au Réseau. Conformément à la loi « informatique et libertés », vous disposez des droits d’accès, de rectification, d’effacement, d’opposition, de limitation et de portabilité de vos données. Vous pouvez retirer votre consentement à tout moment en contactant directement l’Agence / Le Réseau. Consultez le site https://cnil.fr/fr pour plus d’informations sur vos droits. Si vous estimez, après avoir contacté l'Agence / le Réseau, que vos droits « Informatique et Libertés » ne sont pas respectés, vous pouvez adresser une réclamation à la CNIL. Nous vous informons de l’existence de la liste d'opposition au démarchage téléphonique « Bloctel », sur laquelle vous pouvez vous inscrire ici : https://www.bloctel.gouv.fr Dans le cadre de la protection des Données personnelles, nous vous invitons à ne pas inscrire de Données sensibles dans le champ de saisie libre.
Ce site est protégé par reCAPTCHA, les Politiques de Confidentialité et les Conditions d'Utilisation de Google s'appliquent.

Localisationdu bien

  • Commerces et santé
  • Loisirs
  • Ecoles
  • Transports
  • Pratique