0
Exclusif
Nouveauté

BRUZ - Proche Gare - Appartement T3 refait à Neuf

Bruz (35170)
Réf : JBVAP570001456

En Exclusivité !

Smartproprio Bretagne vous présente à la vente ce beau T3 de 61m² refait à neuf.

Idéal pour un premier achat immobilier ou pour un investissement locatif, vous êtes à 5 min de Kerlann.

Sa situation vous offre un environnement calme, amplifié par le double vitrage équipant l'ensemble de l'appartement.

Situé au Rez-de-chaussée (Surélevé) vous bénificierez d'un belle luminosité et d'un balcon exposé au SUD.

Le Bien est composé de 3 lots:

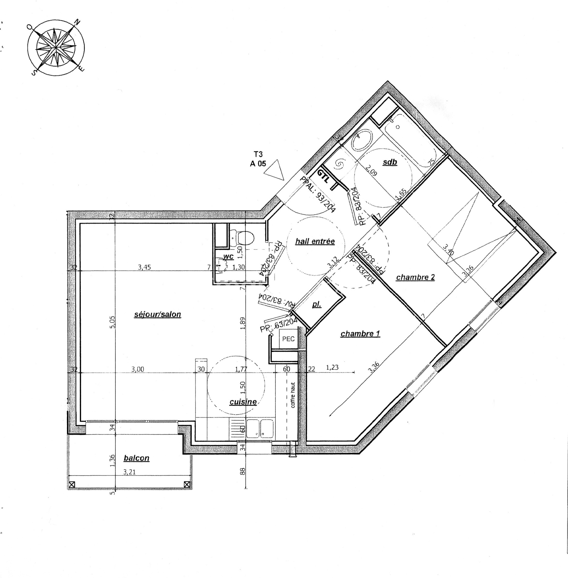
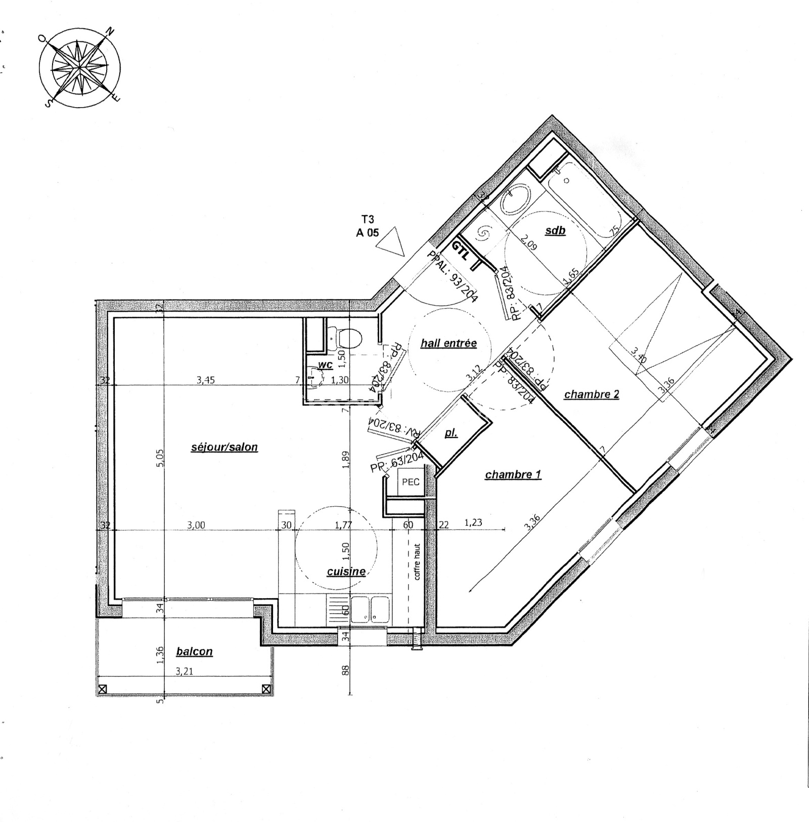
1. AU REZ DE CHAUSSEE DU BATIMENT A : Un appartement de type 3 comprenant un séjour / cuisine ouverte (26m²), deux chambres (11m² et 10m²) , salle de bains, WC, hall, balcon.

2. AU SOUS SOL DES BATIMENTS A ET B : Un garage de 16.54 m2

3. EN EXTERIEUR : Un parking de 12.50m2

L'immeuble est raccordé à la Fibre Optique.

Vous serez proche de toutes les commodités et transports à pieds.

Taxe Foncière 2024 : 1 119, 00 €

Charges de copro / trimestre : 226 €

  • Prix de vente : 215 000 € FAI frais de négociation à la charge du vendeur inclus
  • Diagnostic énergétique : Classe C pour la performance énergétique et C pour l’impact environnemental. (établis en Juillet 2025)

Estimation des coûts annuels : entre 850 € et 1 190 € par an, Prix moyens des énergies indexés sur les années 2021, 2022, 2023

Appartement libre et disponible immédiatement.

Copropriété de 37 lots d'habitation répartis en 2 bâtiments. Pas de procédure en cours.

Informations sur les risques naturels, miniers, ou technologiques disponibles sur le site : www.georisques.gouv.fr.

Pour plus de renseignements contactez nous au 06.09.39.52.71 ou par mail : immobilier35@smartproprio.com

Expert Immobilier Certifié CFEI N°2020/920, Agent commercial immatriculé sous le numéro 537898025 RSAC de RENNES. Rattaché à la carte T N°CPI75012024000000031

Annonce proposée par un agent commercial.

Annonce proposée par un agent commercial


Les informations sur les risques auxquels ce bien est exposé sont disponibles sur le site Géorisques
Prix du bien 215 000 €
Pièce(s) 3
Chambre(s) 2

Caractéristiques du bien

Caractéristiques Valeurs
Code postal 35170
Surface habitable (m²) 61,23 m²
Surface loi Carrez (m²) 61,23 m²
Nombre de chambre(s) 2
Nombre de pièces 3
Ascenseur OUI
Vue dégagée
Nb de salle de bains 1
Cuisine Américaine
Type de cuisine Equipée
Mode de chauffage Gaz de ville
Type de chauffage Radiateur
Format de chauffage Individuel
Interphone OUI
Visiophone NON
Balcon OUI
Terrasse NON
Murs mitoyens 1
Nombre de garage 1
Cave NON
Nombre de parking 1
Exposition Sud
Année de construction 2012

Infos financières

Caractéristiques Valeurs
Prix de vente 215 000 €
Les honoraires d'agence seront intégralement à la charge du vendeur  
Taxe foncière annuelle 1 038 €

Bilans énergétiques

DPE GES
Ce bien vous est proposé par
Ce bien vous intéresse ?
Fieldset par défaut
Fieldset par défaut
Validation

* Champs obligatoires

Contacter l'agence
Validation
Les informations recueillies sur ce formulaire sont enregistrées dans un fichier informatisé par La Boite Immo agissant comme Sous-traitant du traitement pour la gestion de la clientèle/prospects de l'Agence / du Réseau qui reste Responsable du Traitement de vos Données personnelles. La base légale du traitement repose sur l'intérêt légitime de l'Agence / du Réseau. Elles sont conservées jusqu'à demande de suppression et sont destinées à l'Agence / au Réseau. Conformément à la loi « informatique et libertés », vous disposez des droits d’accès, de rectification, d’effacement, d’opposition, de limitation et de portabilité de vos données. Vous pouvez retirer votre consentement à tout moment en contactant directement l’Agence / Le Réseau. Consultez le site https://cnil.fr/fr pour plus d’informations sur vos droits. Si vous estimez, après avoir contacté l'Agence / le Réseau, que vos droits « Informatique et Libertés » ne sont pas respectés, vous pouvez adresser une réclamation à la CNIL. Nous vous informons de l’existence de la liste d'opposition au démarchage téléphonique « Bloctel », sur laquelle vous pouvez vous inscrire ici : https://www.bloctel.gouv.fr Dans le cadre de la protection des Données personnelles, nous vous invitons à ne pas inscrire de Données sensibles dans le champ de saisie libre.
Ce site est protégé par reCAPTCHA, les Politiques de Confidentialité et les Conditions d'Utilisation de Google s'appliquent.

Localisationdu bien

  • Commerces et santé
  • Loisirs
  • Ecoles
  • Transports
  • Pratique