0

Montboucher sur Jabron - 26740 - Drôme - Villa T9 235 m² - 5 chambres - Terrain clos 800 m² - Piscine - Garage

Montboucher-sur-Jabron (26740)
Réf : GCVVI580001599

Située dans un quartier paisible, à seulement 5 kms de Montélimar et quelques pas du centre du village, proche des commerces et de ses commodités, cette magnifique propriété de 225 m² habitables vous séduira par son cadre privilégié et sa superbe vue dégagée sur les collines environnantes.

Particulièrement accueillante et moderne, cette maison contemporaine récente (2020) sur vide sanitaire accessible offre un espace vie très confortable ; le hall d'entrée s'ouvre sur une imposante pièce de vie traversante (84m²) très lumineuse, avec cuisine ouverte très bien équipée, bordée de deux terrasses au sud et au nord. Un vestiaire et un wc indépendant, une arrière-cuisine (cellier-buanderie) de belle dimension avec entrée indépendante, une grande suite parentale (35 m²) avec salle d'eau, wc et dressing, complètent le rez-de-chaussée.

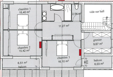
A l'étage, un vaste dégagement dessert quatre chambres spacieuses (3 x 16 m² 1x9 m²) dont deux disposent d'un accès à un balcon privé (6m²), une chambre/bureau (9m²), une salle de bain avec baignoire douche et wc.

Un garage de 30 m² et une piscine de 28 m² agrémentent l'ensemble, laissant libre cours à vos loisirs.

Prestations haut de gamme : carrelage sur toute la surface de la maison, pompe à chaleur avec chauffage au sol réversible, climatiseurs sur les deux niveaux, menuiseries extérieures et volets aluminium sur toutes les ouvertures, maison connectée (domotique).

Un bien rare qui conjugue cachet, volumes généreux et environnement préservé. Cette villa offre une qualité de vie paisible dans un espace très agréable et ensoleillé ; calme, confortable et accessible, elle bénéficie d'un emplacement recherché, proche des différentes activités urbaines de la région, accès rapide à l'entrée de l'autoroute A7 au coeur du pôle économique de l'axe rhodanien (Lyon/Marseille) et du périmètre des activités nucléaires de la région.

Annonce proposée par un agent commercial


Les informations sur les risques auxquels ce bien est exposé sont disponibles sur le site Géorisques
Prix du bien 740 000 €
Pièce(s) 9
Chambre(s) 5

Caractéristiques du bien

Caractéristiques Valeurs
Code postal 26740
Surface habitable (m²) 225 m²
surface terrain 800 m²
Surface loi Carrez (m²) 225 m²
Nombre de chambre(s) 5
Nombre de pièces 9
Nombre de niveaux 2
Vue panoramique
Nb de salle de bains 1
Nb de salle d'eau 1
Cuisine Américaine
Type de cuisine Equipée
Mode de chauffage Electrique
Type de chauffage Au sol
Format de chauffage Individuel
Interphone NON
Visiophone OUI
Terrasse OUI
Nombre de garage 2
Nombre de parking 3
Exposition Sud
Année de construction 2020
Terrain piscinable OUI
Terrain arboré OUI

Infos financières

Caractéristiques Valeurs
Prix de vente 740 000 €
Les honoraires d'agence seront intégralement à la charge du vendeur  
Taxe foncière annuelle 2 900 €

Bilans énergétiques

DPE GES
Ce bien vous est proposé par
Ce bien vous intéresse ?
Fieldset par défaut
Fieldset par défaut
Validation

* Champs obligatoires

Contacter l'agence
Validation
Les informations recueillies sur ce formulaire sont enregistrées dans un fichier informatisé par La Boite Immo agissant comme Sous-traitant du traitement pour la gestion de la clientèle/prospects de l'Agence / du Réseau qui reste Responsable du Traitement de vos Données personnelles. La base légale du traitement repose sur l'intérêt légitime de l'Agence / du Réseau. Elles sont conservées jusqu'à demande de suppression et sont destinées à l'Agence / au Réseau. Conformément à la loi « informatique et libertés », vous disposez des droits d’accès, de rectification, d’effacement, d’opposition, de limitation et de portabilité de vos données. Vous pouvez retirer votre consentement à tout moment en contactant directement l’Agence / Le Réseau. Consultez le site https://cnil.fr/fr pour plus d’informations sur vos droits. Si vous estimez, après avoir contacté l'Agence / le Réseau, que vos droits « Informatique et Libertés » ne sont pas respectés, vous pouvez adresser une réclamation à la CNIL. Nous vous informons de l’existence de la liste d'opposition au démarchage téléphonique « Bloctel », sur laquelle vous pouvez vous inscrire ici : https://www.bloctel.gouv.fr Dans le cadre de la protection des Données personnelles, nous vous invitons à ne pas inscrire de Données sensibles dans le champ de saisie libre.
Ce site est protégé par reCAPTCHA, les Politiques de Confidentialité et les Conditions d'Utilisation de Google s'appliquent.

Localisationdu bien

  • Commerces et santé
  • Loisirs
  • Ecoles
  • Transports
  • Pratique