0

Immense Immeuble à rénover entièrement - Création possible 6 à 9 appartements

Courpière (63120)
Réf : I6VIM430000693

Au centre de Courpière, cet ancien commerce hôtel-restaurant de 550 m² sur deux niveaux
offre un potentiel exceptionnel pour un projet de rénovation à vocation commerciale et/ou locative.

Le bâtiment permet la création de 6 à 9 appartements, et permet la création d'une cour intérieur au rez de chaussée,
offrant ainsi une flexibilité pour répondre aux attentes d'investisseurs ou de futurs locataires.

À l’arrière, la future cour de 50 m² est disponible pour être aménagée en coin extérieur commun ou en plusieurs espaces privatifs,
selon le choix d’aménagement.

Caractéristiques principales :
- Surface totale : environ 550 m² sur 2 niveaux.
- Cour de 50 m² à aménager en espace commun ou privatif
- Possibilité d’aménagement en 6 appartements ou plus
- Emplacement central à Courpière

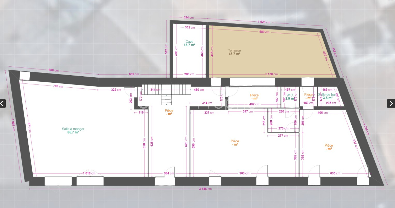
Plans en visuel : Les images de l'annonce incluent des plans réalisés sur KozyKaza,
permettant de visualiser les murs porteurs au rez-de-chaussée ainsi que les volumes globaux du bâtiment,
facilitant la projection d'aménagements futurs.


Rénovation et aides potentielles : Une rénovation complète est à prévoir,
avec une possible éligibilité aux aides de l’ANAH pour accompagner les travaux de réhabilitation.


Pour découvrir le potentiel de ce bien et organiser une visite, n’hésitez pas à nous contacter.

idéal pour un gros investisseur, avec ou sans société de travaux.

Annonce proposée par un agent commercial

Prix du bien 89 000 €

Caractéristiques du bien

Caractéristiques Valeurs
Code postal 63120
Surface habitable (m²) 550 m²

Infos financières

Caractéristiques Valeurs
Prix de vente 89 000 €
Les honoraires d'agence seront intégralement à la charge du vendeur  

Bilans énergétiques

DPE GES
Ce bien vous est proposé par
Ce bien vous intéresse ?
Fieldset par défaut
Fieldset par défaut
Validation

* Champs obligatoires

Contacter l'agence
Validation
Les informations recueillies sur ce formulaire sont enregistrées dans un fichier informatisé par La Boite Immo agissant comme Sous-traitant du traitement pour la gestion de la clientèle/prospects de l'Agence / du Réseau qui reste Responsable du Traitement de vos Données personnelles. La base légale du traitement repose sur l'intérêt légitime de l'Agence / du Réseau. Elles sont conservées jusqu'à demande de suppression et sont destinées à l'Agence / au Réseau. Conformément à la loi « informatique et libertés », vous disposez des droits d’accès, de rectification, d’effacement, d’opposition, de limitation et de portabilité de vos données. Vous pouvez retirer votre consentement à tout moment en contactant directement l’Agence / Le Réseau. Consultez le site https://cnil.fr/fr pour plus d’informations sur vos droits. Si vous estimez, après avoir contacté l'Agence / le Réseau, que vos droits « Informatique et Libertés » ne sont pas respectés, vous pouvez adresser une réclamation à la CNIL. Nous vous informons de l’existence de la liste d'opposition au démarchage téléphonique « Bloctel », sur laquelle vous pouvez vous inscrire ici : https://www.bloctel.gouv.fr Dans le cadre de la protection des Données personnelles, nous vous invitons à ne pas inscrire de Données sensibles dans le champ de saisie libre.
Ce site est protégé par reCAPTCHA, les Politiques de Confidentialité et les Conditions d'Utilisation de Google s'appliquent.

Localisationdu bien

  • Commerces et santé
  • Loisirs
  • Ecoles
  • Transports
  • Pratique