0

SUD ARDECHE - Grande villa contemporaine avec vue dominante - 240 m² - Terrain 2000 m² - Piscine - Garage

Saint-Martin-d'Ardèche (07700)
Réf : GCVVI580001625

Dans un environnement résidentiel recherché du Sud Ardèche, cette propriété contemporaine construite en 2010 déploie environ 240 m² habitables sur un terrain de 2000 m² et bénéficie d'une vue dégagée dominante. Un bien alliant volumes, modernité et performance énergétique.

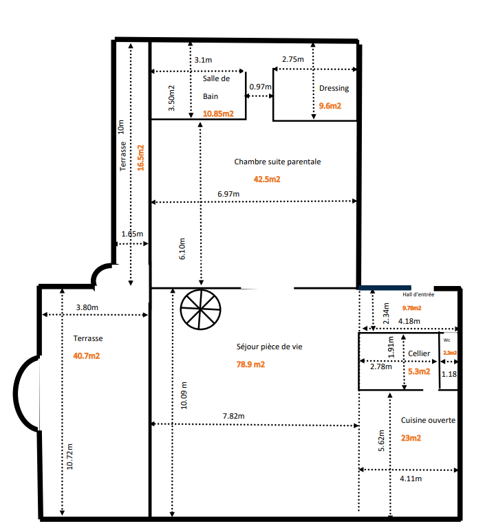
Dès l'entrée, la sensation d'espace s'impose. La pièce de vie de près de 80 m², largement ouverte sur l'extérieur, offre une luminosité remarquable et se prolonge naturellement vers une terrasse exposée plein sud. La cuisine équipée de 23 m² s'intègre harmonieusement à cet espace convivial. La suite parentale (63 m²) constitue un véritable espace privé comprenant bureau, chambre, salle d'eau, dressing et wc, permettant un confort de vie optimal sur le niveau principal.

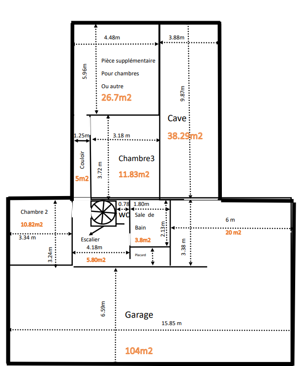
En rez-de-jardin, un second espace indépendant de 56 m² offre une grande flexibilité d'usage ; 2 chambres supplémentaires, ainsi qu'un studio aménagé (27 m²), pouvant être totalement indépendant. Cet agencement permet d'envisager un fonctionnement totalement autonome.

Les extérieurs renforcent le caractère de la propriété : deux terrasses totalisent environ 130 m² - piscine de 25 m² avec bains bouillonnants - garage de 125 m² - cave de 40 m² - Terrain clos 2000 m².

Prestations techniques - pompe à chaleur avec chauffage au sol réversible - installation photovoltaïque 6 KW (16 panneaux) - menuiserie aluminium et double vitrage performant - carrelage sur l'ensemble des surfaces.

Une villa aux volumes remarquables, combinant confort contemporain et potentiel d'évolution, idéale pour une famille recherchant espace et qualité de construction.

Annonce proposée par un agent commercial


Les informations sur les risques auxquels ce bien est exposé sont disponibles sur le site Géorisques
Prix du bien 599 000 €
Pièce(s) 9
Chambre(s) 5

Caractéristiques du bien

Caractéristiques Valeurs
Code postal 07700
Surface habitable (m²) 240 m²
surface terrain 2 000 m²
Nombre de chambre(s) 5
Nombre de pièces 9
Nombre de niveaux 2
Vue Exceptionnelle
Nb de salle de bains 2
Cuisine Américaine
Type de cuisine Equipée
Mode de chauffage Electrique
Type de chauffage TRAD_TYPE_CHAUFF_AIR_EAU
Format de chauffage Individuel
Interphone NON
Visiophone NON
Terrasse OUI
Nombre de garage 1
Cave OUI
Nombre de parking 6
Surface cave (m²) 40
Exposition Sud
Année de construction 2010
Terrain arboré OUI

Infos financières

Caractéristiques Valeurs
Prix de vente 599 000 €
Les honoraires d'agence seront intégralement à la charge du vendeur  
Taxe foncière annuelle 3 542 €

Bilans énergétiques

DPE GES
Ce bien vous est proposé par
Ce bien vous intéresse ?
Fieldset par défaut
Fieldset par défaut
Validation

* Champs obligatoires

Contacter l'agence
Validation
Les informations recueillies sur ce formulaire sont enregistrées dans un fichier informatisé par La Boite Immo agissant comme Sous-traitant du traitement pour la gestion de la clientèle/prospects de l'Agence / du Réseau qui reste Responsable du Traitement de vos Données personnelles. La base légale du traitement repose sur l'intérêt légitime de l'Agence / du Réseau. Elles sont conservées jusqu'à demande de suppression et sont destinées à l'Agence / au Réseau. Conformément à la loi « informatique et libertés », vous disposez des droits d’accès, de rectification, d’effacement, d’opposition, de limitation et de portabilité de vos données. Vous pouvez retirer votre consentement à tout moment en contactant directement l’Agence / Le Réseau. Consultez le site https://cnil.fr/fr pour plus d’informations sur vos droits. Si vous estimez, après avoir contacté l'Agence / le Réseau, que vos droits « Informatique et Libertés » ne sont pas respectés, vous pouvez adresser une réclamation à la CNIL. Nous vous informons de l’existence de la liste d'opposition au démarchage téléphonique « Bloctel », sur laquelle vous pouvez vous inscrire ici : https://www.bloctel.gouv.fr Dans le cadre de la protection des Données personnelles, nous vous invitons à ne pas inscrire de Données sensibles dans le champ de saisie libre.
Ce site est protégé par reCAPTCHA, les Politiques de Confidentialité et les Conditions d'Utilisation de Google s'appliquent.

Localisationdu bien

  • Commerces et santé
  • Loisirs
  • Ecoles
  • Transports
  • Pratique